新型小型搅拌机混凝土提高作业效率几十倍
随着我国的经济建设的速度越来越快,各地特别是城市的建设速度也越来越快,大量的混凝土建筑雨后春笋般拔地而起,在这个过程中,需要大量的混凝土来参与建设,小型搅拌机混凝土设备必不可少。
小型搅拌机混凝土技术领域,具体为一种防止水泥混凝土粘附在主轴上的小型混凝土搅拌机。
背景技术:
随着我国的经济建设的速度越来越快,各地特别是城市的建设速度也越来越快,大量的混凝土建筑雨后春笋般拔地而起,在这个过程中,需要大量的混凝土来参与建设。
混凝土搅拌机是常见的一种混凝土搅拌生产设施,小型搅拌机混凝土可广泛应用于需求混凝土的各种大中小型场所,卧式小型搅拌机是其中的一种,具有混合均匀度高、混合时间短、生产效率高、卸料快、卸料干净、残留少等优点。然而,卧式搅拌机在搅拌水泥混凝土时,其主轴及搅拌臂很容易粘附水泥混凝土,需要工人每天进行清理,如不及时清理则越沾越多,很快设备没办法继续使用。为了解决这个问题,目前,一些建筑用小型搅拌机生产厂家在主轴上加钢圈,主轴在转动时,钢圈在主轴上甩动,以此来减少粘轴的现象,但实际效果不大明显,且钢圈甩动时噪音很大,使用一段时间后,钢圈磨损易断开,还会带来不安全因素,这都给人们带来了很大的困扰。因此需要对其进行改进,以解决上述问题。
小型搅拌机混凝土技术实现要素:
小型搅拌机混凝土目的在于提供一种新型不粘轴式混凝土搅拌机,以解决上述问题。
不粘轴式混凝土搅拌机,包括搅拌机主体、主轴和固定在主轴上的搅拌臂,在本实用新型中,主轴内沿轴线方向开设有主轴中心孔,并辐射到主轴的表面呈放射状分布有排气小孔,主轴非传动端端头处设置有气管接头,与主轴中心孔连通。
移动式小型搅拌机搅拌臂内开设搅拌臂内孔,与主轴中心孔相连通,并向外辐射到搅拌臂表面呈放射状分布有排气小孔。
主轴的非传动端端头处设置有端盖,端盖内侧设置有密封圈,保证进气端的气密性能。
气管接头设置在端盖中心,使得端盖内侧与主轴端头处形成进气的密闭空间,既不影响主轴的运转,还能给进气提供一定的缓冲空间。
主轴上的气管接头为PC直通快插气管接头。
与现有技术相比,此款小型搅拌机结构新颖,设计合理,构思巧妙,使用方便,由压力气源通过主轴向搅拌机的搅拌空间吹气,使主轴和搅拌臂表面有一层气体分布,使得水泥混凝土难以粘附到主轴和搅拌臂上,效果显著,能有效的节约清理主轴的人力物力,延长设备的使用寿命。
附图说明

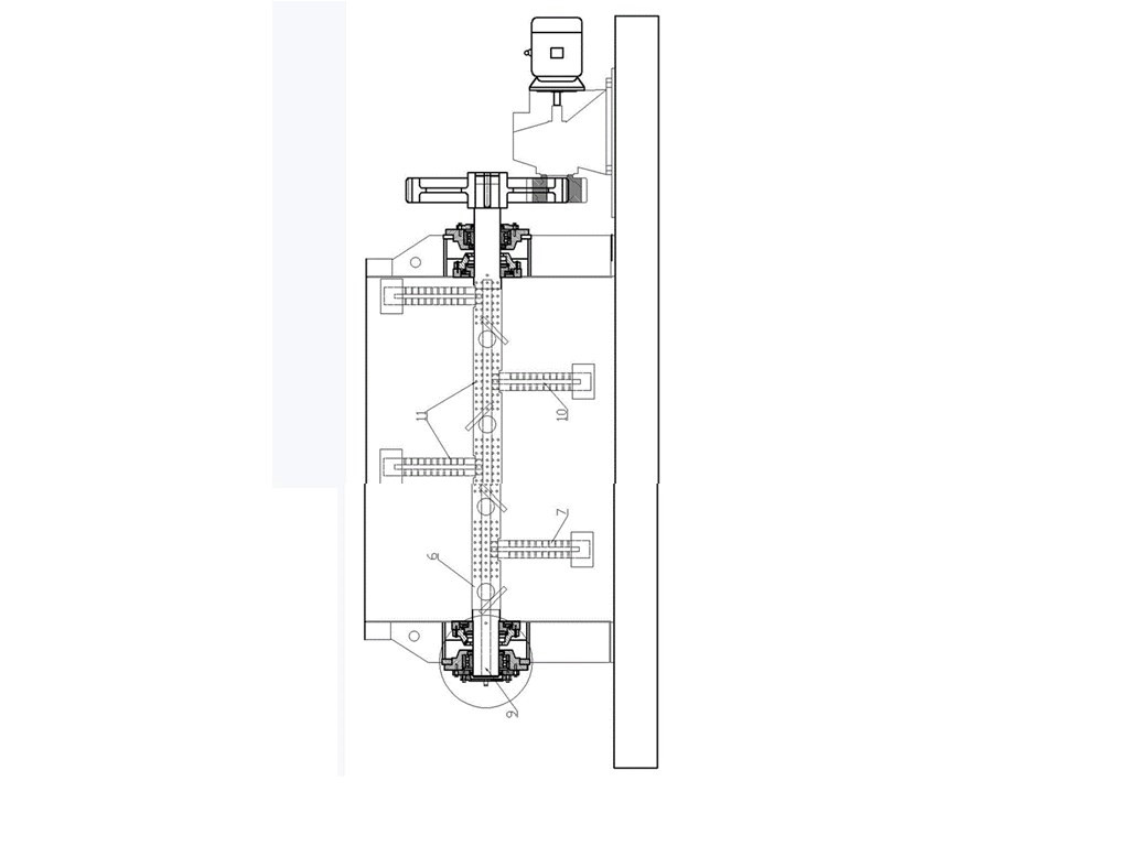
图1 为小型搅拌机混凝土实施例的结构示意图;
图中:PC直通快插气管接头1、端盖2、透盖3、主轴支座4、轴承5、主轴6、搅拌臂7、密封圈8、主轴中心孔9、搅拌臂内孔10、排气小孔11。
具体实施方式
以下小型搅拌机结合说明书附图和具体优选的实施例对本实用新型作进一步描述,但并不因此而限制本实用新型的保护范围。
新型不粘轴式混凝土搅拌机,包括搅拌机主体、主轴和固定在主轴上的搅拌臂,主轴的两端通过轴承设置在主轴支座上,并由外侧的透盖3覆盖和保护轴承,在透盖的外侧还设置有端盖对主轴的端头进行保护,端盖与透盖的接触处设置有密封圈以保证主轴端头处气密性良好,端盖中心设置有PC直通快插气管接头,外接压力气源,主轴内沿轴线方向开设有主轴中心孔,并辐射到主轴的表面呈放射状分布有排气小孔,搅拌臂内开设有搅拌臂内孔,与主轴中心孔连通,并向外辐射到小型砂浆搅拌机搅拌臂7表面呈放射状分布有排气小孔。
新型小型搅拌机混凝土搅拌时,压力气源通过PC直通快插气管接头向混凝土搅拌机内吹气,气体通过主轴中心孔、搅拌臂内孔及分布在主轴和搅拌臂表面的排气小孔向外吹气,使主轴6和搅拌臂7表面有一层气体分布,使得水泥混凝土难以粘附到主轴和搅拌臂上,由此实现混凝土的不粘轴效果。
小型搅拌机厂家168飞艇开奖官网开奖记录查询结果研发小型搅拌机混凝土新型结构新颖,小型搅拌机使用设计合理,构思巧妙,使用方便,不粘轴效果显著,能有效的节约清理主轴的人力物力,延长小型搅拌机混凝土设备的使用寿命。

通过以上文章阅读参照附图详细描述,相信您对小型搅拌机混凝土其特征、使用、结构了解更加透彻,了解小型搅拌机混凝土价格、图片、使用视频可联系专业销售人员了解更多。
扫描以下二维码添加微信获取更多厂家时效信息!
联系电话:0312-6770968;13933276606 崔经理
赶快来获取小型搅拌机混凝土生产厂家一手信息,拒绝中间商,给你批发价格!







